Verwaltungsneubau Kreuzboden, Liestal

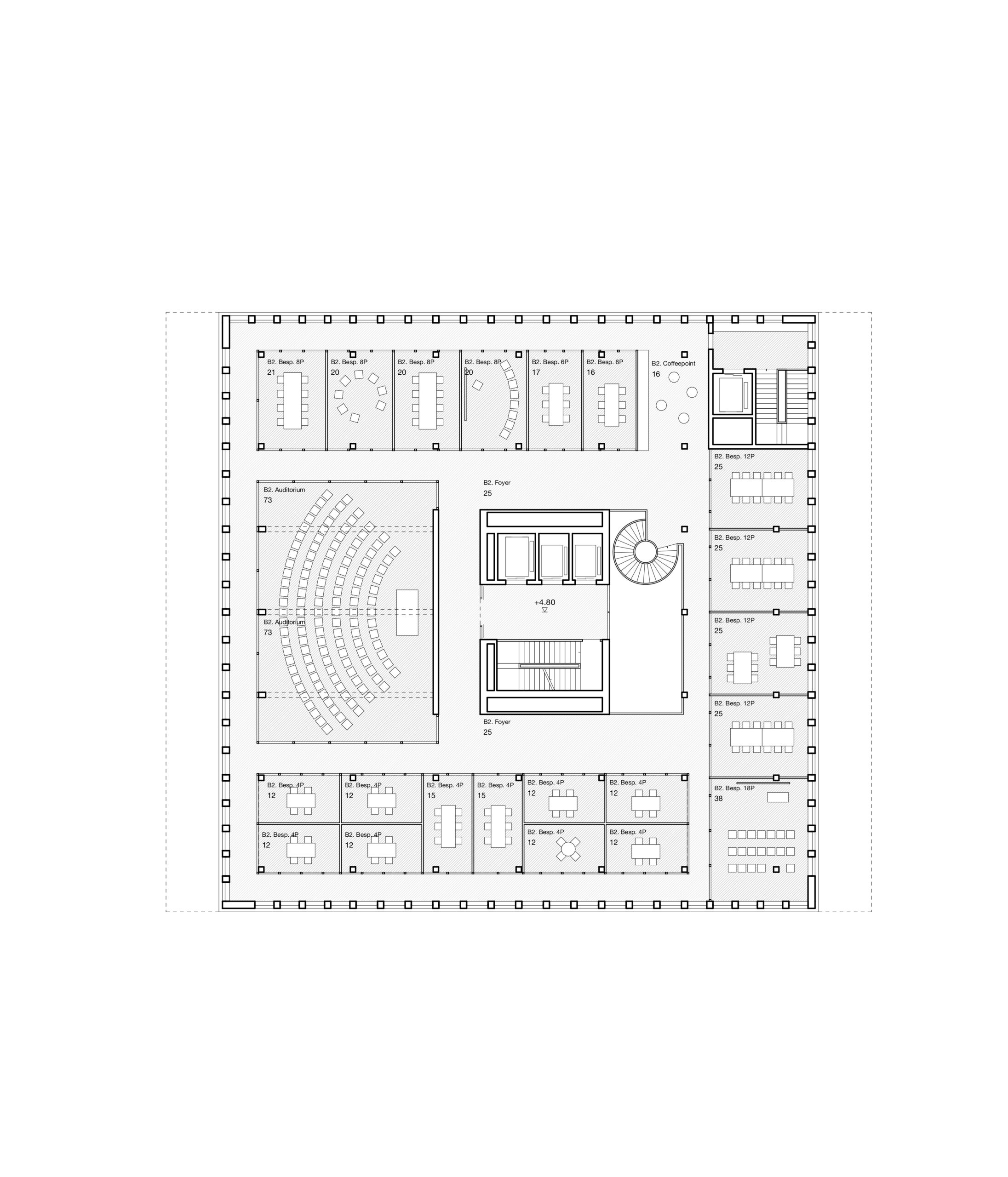
An der Rheinstrasse in Liestal reiht sich ein Verwaltungsbau an den anderen. Nun plant der Kanton an der breiten Ausfallachse seines Hauptorts im Gebiet Kreuzboden ein weiteres Gebäude. Es soll als ganzheitlich nachhaltig gedachter Bau in Holzbauweise 560 Arbeitsplätze anbieten. Unser Projekt „Prisma“ übersetzt die hohen Ansprüche des Auslobers in ein punktförmiges, präzis in die Parklandschaft und zum Bestand gesetztes Hochhaus. Damit wird die Bodenversiegelung möglichst knapp gehalten, ohne dass auf funktionale Ansprüche verzichtet werden muss. Auf der Basis zweier Sockelgeschosse, welche die öffentlichen Bereiche beherbergen und grosszügige Raumsequenzen schaffen, bauen sich die in ihrer Struktur identischen Bürogeschosse auf. Ein zentral gesetzter Kern versorgt mit der umlaufenden Erschliessung die frei unterteilbare Büroschicht. Als Kontrapunkt zu den ökonomischen Bürobereichen dienen die örtlich eingeschobenen zweigeschossigen Begegnungszonen. Sie schaffen einen Bezug von Geschoss zu Geschoss und ermöglichen einen teamübergreifenden Austausch.

Projektwettbewerb im selektiven Verfahren, 2. Rang, 2024

Standort: Kreuzbodenweg 2, 4410 Liestal
Bauherrschaft: Bau- und Umweltschutzdirektion Kanton Basel-Landschaft

Architekt/Generalplaner: Zusammenarbeit Burkard Meyer Architekten BSA mit Gruner AG Basel
Mitarbeit Wettbewerb Burkard Meyer Architekten BSA: Oliver Dufner, Daniel Krieg, Adrian Meyer mit Leon Bloch, David Eckert, Eleni Giakoumaki

Landschaftsarchitektur: ASP Landschaftsarchitekten, Zürich
Bauingenieur: Gruner AG, Basel
HLKS-Planung: Gruner AG, Basel
Elektroplanung: Gruner AG, Basel
Bauphysik, Akustik und Nachhaltigkeit: Gruner AG, Basel

Visualisierungen: Indievisual, Zürich