Erweiterung Schulanlage Höchi, Baden-Dättwil

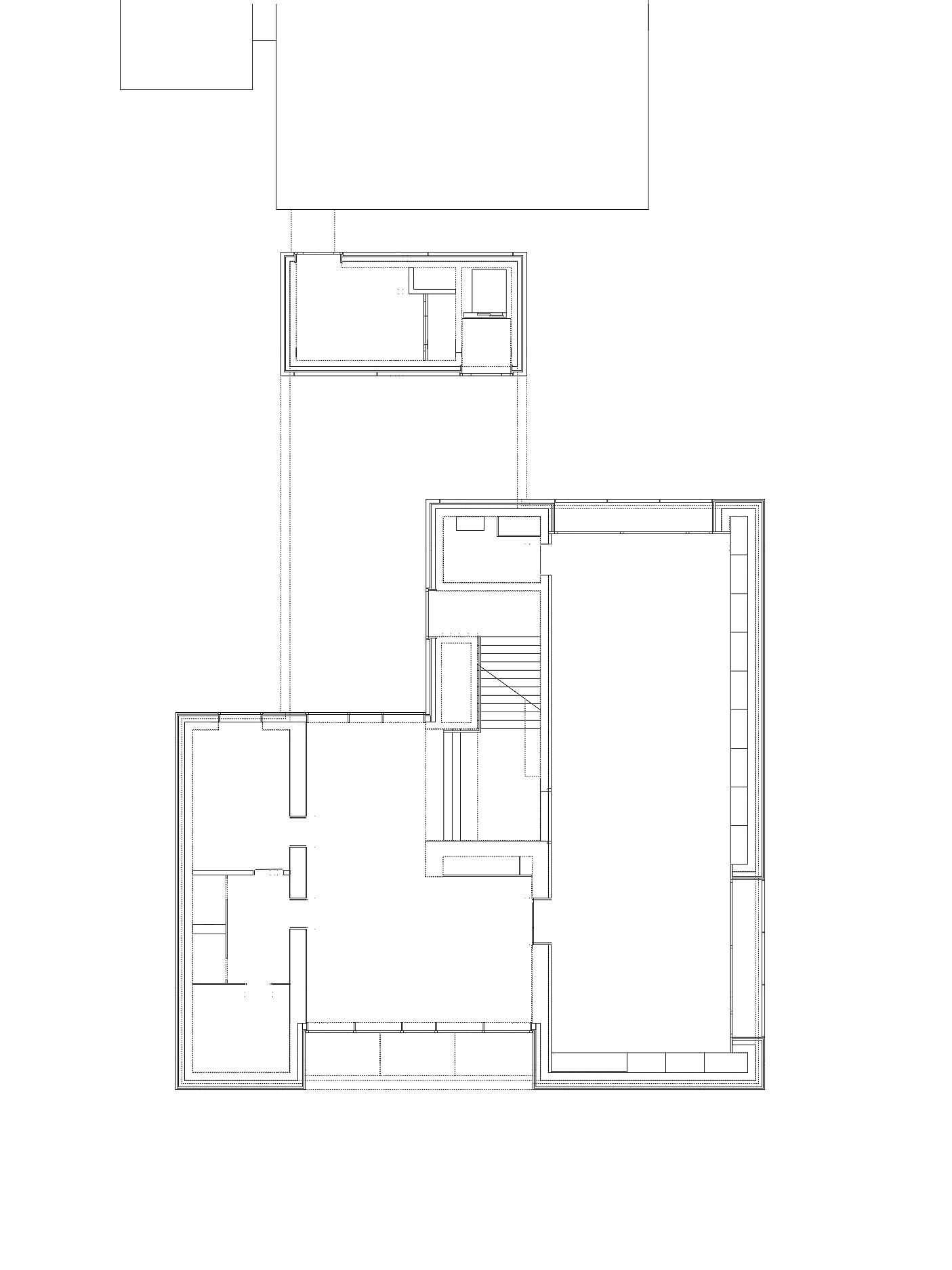
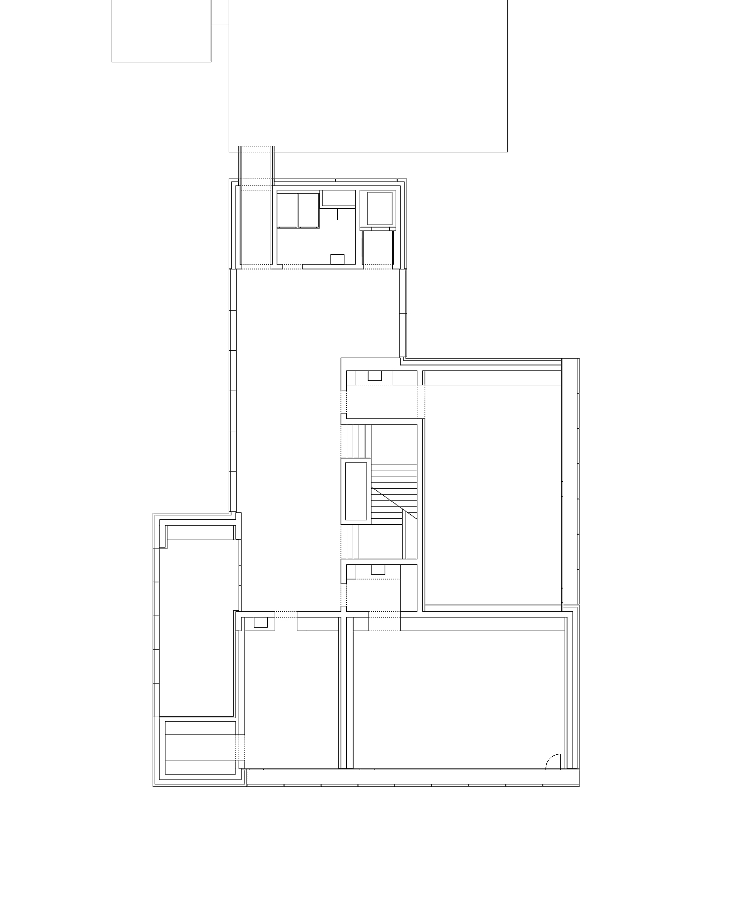
Der neue Trakt der Schulanlage Höchi in Baden-Dättwil mit seinen vier Klassenzimmern, den vier Gruppen- und Einzelunterrichtsräumen sowie dem im Erdgeschoss angelegten Kindergarten präsentiert sich als eigenständiger Baukörper. Als funktionale Erweiterung bindet er sich über einen Verbindungshals an die bestehende Primarschule an. Der schlichte Gebäudekörper mit der auf Glas und Beton reduzierten Hülle ordnet sich über seine Tonalität und über die im Laufe des Tages varierenden Reflexionen in die bestehende Umgebung ein.

Wettbewerb, 1. Rang, 1999
Realisierung 1999–2000

Standort: Dättwilerstrasse 14, 5405 Baden-Dättwil
Bauherrschaft: Stadt Baden-Dättwil, Bau- und Planungsabteilung

Architekt: Burkard Meyer Architekten BSA
Mitarbeit Planung und Ausführung: Urs Burkard, Adrian Meyer, Daniel Krieg mit Florian Stegemann

Bauingenieur: Caesar Macchi, Dipl. Bauingenieur ETH, Baden-Dättwil
HLKS-Planung: Waldhauser Haustechnik AG, Basel
Elektroplanung: Amstein & Walthert, Zürich
Fassadenplanung: Mebatech AG, Baden
Kunst am Bau: Stefan Gritsch, Lenzburg